"Linux Gazette...making Linux just a little more fun!"


Micro Publishing

By by Rick Holbert and Mark Nielsen



  1. Introduction
  2. Overview
  3. Copyright
  4. Software
  5. Hardware
  6. Fabrication
  7. Conclusion and References

INTRODUCTION
"Micro Publishing" or publishing "Books on Demand" has been, up until now, only a dream. Most of the pieces were already in place, (Desktop Publishing Software, Laser Printers, Imposition Software, etc.). The last key ingredient was an inexpensive way to bind and cover the books into professional looking "Perfect Bound" books.

The future just arrived.

OVERVIEW
The process I'm about to describe will allow you to use FREE Linux software tools, a laser printer, contact cement, and an easy to build book binding vise to produce professional looking "Perfect Bound" paperback books for the cost of the materials.

COPYRIGHT
Please observe all copyright and licensing restrictions. There are plenty of "Open" books in the Linux Documentation Project, and "Public Domain" books at Project Gutenburg.

SOFTWARE
The primary tool used to build books with Linux is mpage. I use mpage to set up the pages for printing (four virtual pages per physical sheet). This process is called "imposition."

Mpage uses the postscript page description language for both input and output. All the other tools are used to translate other formats into postscript, or to translate postscript into other formats.

Additional tools include:

TeX and LaTeX
dvips
PDFTeX and PDFLaTeX
GhostScript
Acrobat Reader

HARDWARE
Besides a computer capable of running Linux, you will need a laser printer (single sided, non-duplexing printers work ok), and a book binding vise.

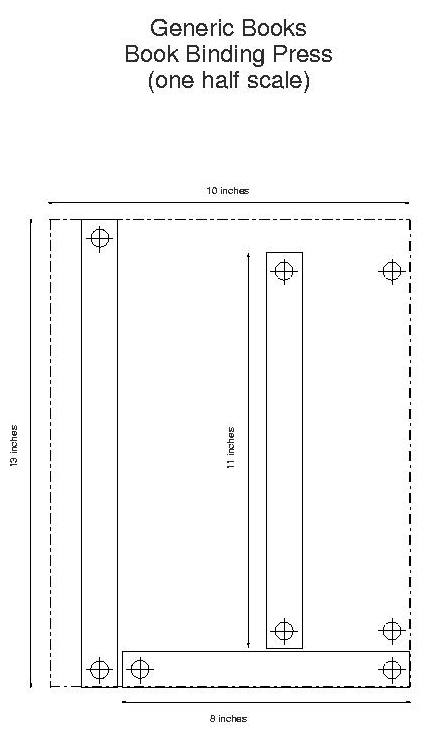
The book binding vise consists of a thick board measuring 10 inches by 13 inches (I made two vises from a piece of 10 by 30 inch particle board shelf), and three pieces of one inch square metallic tubing (like the kind used to make TV antenna booms). The three pieces of tubing measure 8 inches, 11 inches, and 13 inches. Holes are drilled through the board and tubing to accommodate 1/4 inch carriage bolts. For binding 5 1/2 by 8 1/2 inch books the 8 inch and 11 inch tubes are first arranged to form a T. The 8 inch tube runs vertically along the left, 10 inch side of the board. The 11 inch tube runs horizontally along the middle, 13 inch section of the board. The 11 inch tube may be optionally repositioned at the bottom, 13 inch side of the board for binding 8 1/2 by 11 inch books. The 13 inch tube runs horizontally along the top, 13 inch side of the board, and is attached with 3 inch carriage bolts and wing nuts so it can be adjusted up and down.

FABRICATION
Now it's time to literally put all the pieces together. Our first step is to translate our source document into postscript.

If your source is a TeX, texinfo or LaTeX document you may use tex/latex or texi2dvi and dvips to convert it into postscript. However, be warned. The default fonts used with dvips are type 3, bit mapped founts. These look fine once printed, but they are ugly when viewed with GhostScript or Acrobat Reader, and produce large files.

An example of the commands are as follows:

 tex filename.tex

 tex filename.tex

 makeindex filename.??

 dvips filename.dvi -o filename.ps

 or in the case of texinfo files (like the GNU docs)

 texi2dvi filename.texi

 dvips filename.dvi -o filename.ps

A better solution is to use PDFTeX or PDFLaTeX to convert your TeX/LaTeX source document into a PDF, and then to export it to postscript.

The command is pdftex filename.tex or pdflatex filename.tex

For texinfo files you should run texi2dvi or tex, tex, makeindex first to create any indices or cross references first. You may also try using GhostScript to convert PDFs into postscript using

pdf2ps filename.pdf filename.ps

If your source is a PDF you can use GhostScript's pdf2ps command as described in the previous step, or use Acrobat Reader to print to a postscript file.

If the PDF file is encrypted, you may need to download a GhostScript security patch from Australia. A GhostScript error message will give you the details.

Now we're ready to use mpage to set up our 5 1/2 by 8 1/2 inch book. The pages are arranged into "signatures" in the order 4, 1, 2, 3. That way they read in the correct order when the page is folded in half.

mpage produces two files. One for the front page pairs (i.e., 4 - 1, 8 - 5, etc.), and one for the back page pairs (i.e., 2 - 3, 6 - 7, etc.).

The mpage commands are:

mpage -O -b Letter -o filename.ps > filename_front.ps

mpage -E -b Letter -o filename.ps > filename_back.ps

You may optionally translate your two files into PDF using

ps2pdf filename_front.ps filename_front.pdf

ps2pdf filename_back.ps filename_back.pdf

I find it easier to print from Acrobat Reader, and it makes distribution to other Operating Systems a lot easier.

Now print the front pages. I like to break the job down into ten page chunks. That way, if the printer jams, or the human messes up, I've only lost a maximum of ten pages. Take the pages out, and put them back into your laser printer so that the corresponding back pages will print on the back of the pages you just printed. You will probably have to print them in reverse order, (i.e., 10 through 1, 20 through 11, etc.). You may have to experiment a bit to get your pages into the right orientation.

Once you've printed both sides, fold them in half (a folding machine comes in real handy here), and stack them in the book binding vise. Place your legal size card stock cover under the folded pages, and align as needed. Clamp down the long tube. Score the cover twice, using a dull utility knife, or an old ball-point pen where it will fold along the spine of the book. Apply contact cement along the paper folds, and the corresponding area of the cover (between the score marks).

Let it dry for 10 to 15 minutes, and roll the cover over the folded pages. Run your fingers along the spine of the book to ensure a strong bond. You may also use a rounded object like the side of a pen for this task.

Loosen the clamp, carefully take the book out, fold the rest of the cover over, and place it back into the clamp (with any excess cover allowed to overlap the bottom aligning tube). Go over the spine a few more times with your finger or the side of a pen.

Remove the book from the vice, place it horizontally on a flat surface with a weight on top of it to keep the pages flat, and let it sit over night.

You may now trim the cover, add title stickers, or laminate as desired. Congratulations! You've just made a book

CONCLUSION
I hope you've enjoyed this short discussion of "Micro Publishing."  It may take a little practice, but after three or four times, your books should look fine.  Remember to follow all safety precautions when building the vise, and to use the contact cement in a well ventilated area.

Some references are as follows:

bookvise.pdf - book binding vise plans

www.mesa.nl - mpage author's home page

www.tinaja.com - Several articles about "Books on Demand", postscript, acrobat, etc.

www.gigabooks.net - Sells ready made book binding vices along with a book describing the process.

www.cappella.demon.co.uk - Discusses postscript markup language and additional binding processes.

e-mail me - With your constructive comments, questions, or whatever.



Rick works as a computer guy at TeamAmerica and Mark works as a computer guy at The Computer Underground. For some reason, these two dudes have started a company called ZING (ZING Is Not GNU, well what is GNU? GNU is Not Unix) to promote and distribute free and open software and literature. Mark doesn't know why he attached his name to this article since Rick did 95% of the work, but it looks good for his resume.


Copyright © 1999, by Rick Holbert and Mark Nielsen
Published in Issue 47 of Linux Gazette, November 1999


[ TABLE OF CONTENTS ] [ FRONT PAGE ]  Back [ Linux Gazette FAQ ]  Next